鯖江市 賃貸店舗・事務所

鯖江市 賃貸店舗・事務所

お問い合わせ番号:f11164-151599
賃貸店舗・事務所
鯖江市水落町4
福井鉄道福武線「神明」駅 ( 徒歩 6分 )
賃料 10.00万円(税別)
(坪単価:0.27万円)
・福井鉄道福武線神明駅徒歩6分。
・駐車場4台ありの店舗・事務所


神明小学校近くの道路奥の建物です。
深い軒が玄関先にありますので、雨の日の荷物搬入などが楽にできます。
管理費 3,000円(税別)
保証金
解約引
-
-
敷金
礼金
500,000円
-
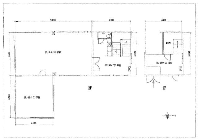
建物/専有
面積
123.40m2
(37.32坪)
土地面積 - 築年月 1982年8月
(昭和57年8月)
駐車場 有り無料/4台 所在階 1-2階 地上階数
地下階数
2階
-
構造 鉄骨造
用途地域 第一種中高層住居専用地域
接道状況 公道 東 
現況 空き
入居/引渡 即時 
取引 仲介
物件登録日 2025年9月18日
情報更新日 2025年11月5日
火災保険加入必要です。
保証会社への加入が必要です。

鯖江市 賃貸店舗・事務所 周辺地図

鯖江市 賃貸店舗・事務所 のことならお気軽にご相談ください。
テナントショップ鯖江 福井(T&T株式会社)
TEL:0778-52-2937
営業時間:9:00~17:30
定休日 :土曜日、日曜日、祝日
メールでのお問い合わせ

お電話の場合は「テナントショップを見ました。物件番号は < f11164-151599 > です」と伝えていただくとスムーズにお応えできます。

  • 借りる
  • テナント・貸店舗を探す
  • オフィス・事務所を探す
  • 倉庫・工場を探す
  • 貸土地・借地を探す
  • 居抜き物件
  • 地域で探す
  • 買う
  • 売買物件を探す
  • 依頼する
  • 新着物件!未公開物件!地元に詳しい!
  • 物件リクエスト
検索する
スペース区切りの複合語句検索はできません

  • スマホで物件検索
  • 物件管理
  • 会社概要・アクセス
  • T&T株式会社