福井市 店付住宅

福井市 店付住宅

お問い合わせ番号:f11164-125208
不動産/店付住宅
福井市 店付住宅
福井市八ツ島町15字5-2、5-9
えちぜん鉄道日華化学前駅 ( 徒歩 5分 )
( 車 1分  300m )
価格 1,980.00万円(税込)
・隣地南側は駐車場のため国道416号線より視認性あり
・明里橋通りー堀ノ宮交差点より車で2分
・北陸新幹線ー福井駅より車で11分
・えちぜん鉄道ー日華化学前駅より徒歩5分
・えちぜん鉄道ー八ツ島駅より徒歩6分

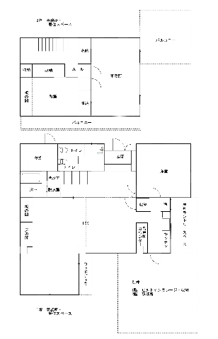
・元デイサービスセンター 現状渡し

上下水道引込済み、電気・ガス使用可。

元デイサービスセンターのため、バリアフリーのトイレ、バリアフリーの浴室です。
ベッド、事務デスク、テーブル、イス、ロッカー必要ない場合は撤去します。
事務所兼住宅としておススメです☆

近隣商業施設
◆ローソン「福井二の宮」店より車で2分
◆スターバックスコーヒー「福井二の宮 藤島通り」店より車で3分
◆【バロー「新田塚」店・マクドナルド「福井新田塚」店・ゲオ「二の宮」店・ファミリーマート「福井二の宮五丁目」店】より車で3分
満室時収入
想定利回り
-
-
土地面積 231.00m2
(69.87坪)
築年月 1973年1月
(昭和48年1月)
駐車場 有/2台
(-)
建物/専有
面積
153.40m2
(46.4坪)
地上階数
地下階数
2階
-
接道状況 公道 北 4.93m 
接道状況 公道 東 5.43m 
用途地域 第一種住居地域
都市計画 市街化区域
地目 雑種地
建ぺい率 60%
容積率 200%
計測方式 公簿
不動産の現況 空き
入居/引渡 相談 
取引 仲介
物件登録日 2024年6月20日
情報更新日 2025年10月22日
現状渡し
別棟でビルトインガージ2階に、更に事務所スペースあり。
(トイレ・キッチン・洗面所・ガス)

駐車スペース2台以上ご希望の方はご相談ください!
(近隣月極駐車場4台程度可能です。5,000円/台)

ローンシミュレーション

ローンシミュレーション条件
頭金 万  
ボーナス払い
(年2回)
万  
借入利率 %  
借入年数 年  
ローンシミュレーション結果
借り入れ金額 19,800,000
月々の返済額
(ボーナス月以外の年10回)
56,634/月
ボーナス月の返済額
(年2回)
56,634/月
年間の返済額 679,608
総支払額
(頭金含む)
23,786,280
  • ※元利均等返済方式でシミュレーションしています。
  • ※実際のご返済額はその他の条件により計算結果と異なりますので、予めご了承ください。
  • ※シミュレーション結果はご返済の目安としてご利用ください。また、将来のお借り入れを約束するものではありません。

福井市 店付住宅 周辺地図

福井市 店付住宅 のことならお気軽にご相談ください。
テナントショップ鯖江 福井(T&T株式会社)
TEL:0778-52-2937
営業時間:9:00~17:30
定休日 :土曜日、日曜日、祝日
メールでのお問い合わせ

お電話の場合は「テナントショップを見ました。物件番号は < f11164-125208 > です」と伝えていただくとスムーズにお応えできます。

  • 借りる
  • テナント・貸店舗を探す
  • オフィス・事務所を探す
  • 倉庫・工場を探す
  • 貸土地・借地を探す
  • 居抜き物件
  • 地域で探す
  • 買う
  • 売買物件を探す
  • 依頼する
  • 新着物件!未公開物件!地元に詳しい!
  • 物件リクエスト
検索する
スペース区切りの複合語句検索はできません

  • スマホで物件検索
  • 物件管理
  • 会社概要・アクセス
  • T&T株式会社